蔡內科建築 中山路183號
- 老屋動

- 2021年9月18日
- 讀畢需時 3 分鐘
已更新:2022年5月31日
蔡內科建築在日治時期由日本人所興建,屬於折衷主義式建築,亦具有新藝術風格的街屋形式,混合日本殖民時期的技術,融合古典建築樣式。為二層樓建築,整體外觀簡潔有力,頂部線條乾淨俐落,既無多餘的裝飾,也沒有圍繞牆頭的花草飾帶,直線線條利落毫無裝飾,局部裝飾集中在女兒牆上,具氣派大門及寬廣的騎樓空間,幾近落地的窗戶,使得內部空間顯得非常明亮,像是具有風格品味的文化堡壘。
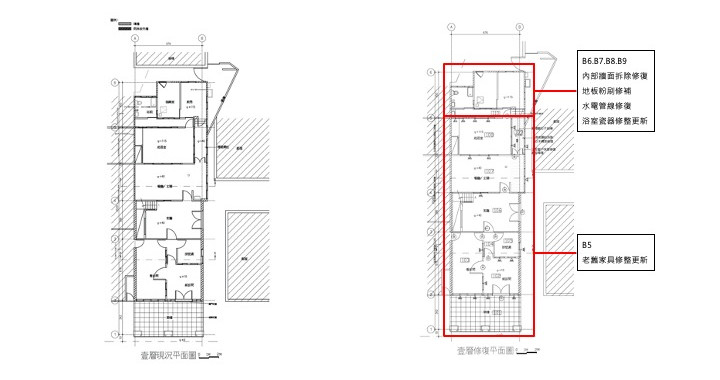
依據原屋主蔡醫師之口述(109/02/08),民國38年至64年為其父親蔡惠郎醫師之診所,民國64年至82年為其大哥蔡昭雄醫師之診所,大哥過世後建築物即閒置至今。現任屋主葉建築師同意保存及維護建物,規劃一樓維持原有蔡醫師當年行醫之診所空間佈局,同時將展示蔡醫師當年行醫使用之醫療用具及相關文物,另外將另闢區域展示日治時期之醫療衛生之歷史發展,以重現當時之醫療整體環境之大要,同時將兼作為咖啡、簡餐、品酩品酒藝術之商業空間,民眾在享用餐飲同時,亦可發思古之幽情,回憶當年的生活及醫療環境之種種。
二樓規劃作為聚會、研討會、社區教室等場所,及咖啡簡餐、品酩品酒藝術之商業空間,並將場地提供給社區進行相關醫療衛生保健及相關之文化活動,期待與在地環境結合為社區文化發展盡一分心力。
整體建築空間形式
本建築物屬日治時期傳統街屋形式,位於台中市中山路183號近三民路,為台中市中區之核心區域,建築物高度2層樓,但其每樓層高度,相對於其他日治時期之街屋明顯較高,研判應為興建初期作為商業使用,為顯示其整體之氣派,同時樓高較高亦對於商業空間而言空間可使用之面積可適度透過立體化之方式增加,沿道路設有騎樓(高度亦較鄰屋高),壹層及貳層室內空間早期作為商業使用,後期則作為診所使用,目前為閒置空屋。
立面外觀特色
整體立面為貳層樓之加強磚造建築,立面外觀為典型的日治時期之現代化建築,立面造型線條相當簡約
一樓騎樓柱線條簡單利落,僅於柱腳部分作簡單之基座處理,完全無其餘累贅之裝飾,騎樓面對中山路之開口及騎樓方向之開口以設計簡單之圓拱造型,增加部分之趣味。
二樓以長型之開口面對中山路,配合一樓之柱位,左右對稱的開了3個長條形之外推式窗戶,開口比例優美,僅於開窗四周設計簡單之收邊,無過多之裝飾。中間窗戶上方設有”吉”字之商店標誌,為初期所有權人”吉田”之代表文字。
山牆部分亦採簡約處理,於中間部分設計三條直條形之飾條,輔以兩側漸次下降之山牆及簡單之收邊造型,型術塑出簡約低調但不失其活潑之立面設計,相當特別。
材料使用
主體建築物結構為加強磚造,結構體及樓板為鋼筋混凝土構造,牆面為磚造厚度近30公分,整體結構大致完整,僅左後側局部須進行結構補強,
整體立面為淺灰色洗石子,僅於立面收邊及山牆收邊以較深之洗石子點綴,整體設計走簡單低調路線。屋頂為King Post木構架,材料及施工相當優良,由於屋頂並無漏水現象,因此整體木構架情況良好,僅部分曾遭白蟻侵害,未來須進行除蟲工作。另外目前部分封簷板已經損壞,須進行維修,以避免影響木構架之安全。
申請者:葉宗衡建築師事務所
門牌號碼:臺中市中區中山路183號
建物結構:加強磚造
屋齡:70年
目前情形:閒置
未來使用:咖啡/簡餐/品酩品酒藝術之商業空間、中小型之聚會/研討會/社區教室












































留言