龍生96共享空間Long Sun 96 Coworking Space
- 老屋動

- 2021年9月18日
- 讀畢需時 2 分鐘
從2012成立「中區再生基地」到2017年成立「中城再生文化協會」,一直以協會致力於透過紮實的調査、在地對話以及舉辦各類工作坊活動,讓年輕人和市民們,重新來認識舊市區。舊市區有需多被遺忘的閒置空間需要被活化再利用,而許多年輕的創業者或工作團隊需要適合的工作空間。為閒置空間與空間需求者之間的媒合橋梁,也一直是協會的任務目標之一。透過協會累積的經驗與觀察,中區民權路96號將重新規劃設計成為「龍生96共享空間」,不只是空間的規劃設計與施作,未來也將協助經營規劃管理、並協助空間與工作者的媒合,真正達到地方經營、互利共生、城市復興等多個目標。
整體設計構想說明
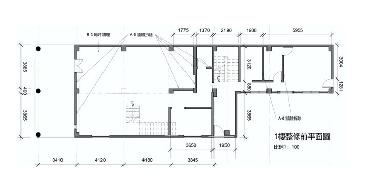
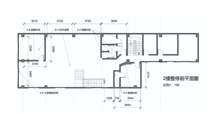
一樓前方之大廳將作為多元商業空間,提供餐飲、書店、選品等業種進駐。二樓空間開闊,將設置為多功能展演及活動空間,可作為地方社團或民眾交流、社區再造、藝文展演活動等場域,提升空間活力。 一至三樓後方設計為個人工作空間,提供地方小型工作團隊進駐使用,四樓做為多功能活動露台,提供額外的室外活動空間。 全落地窗設計,裡面採用極簡設計,給人清新且自然融入舊市區城市景觀的印象。
保留原有前方一、二樓寬闊樓面做為開放空間,後方三層保留大部分格局,增設部分隔間作為共同工作空間,並翻新地板、天花板及牆面,入口由單一入口改為全落地窗設計,裡面採用極簡設計,給人清新且自然融入舊市區城市景觀的印象。
申請者:社團法人台灣中城再生文化協會
門牌號碼:臺中市中區民權路96號
建物結構:加強磚造
屋齡:62年
目前情形:閒置
未來使用:以共享空間之經營模式,提供各類型之個人工作空間進駐






































留言